Kiel:
Erstbezug nach Renovierung: 4,5 Zimmer-Wohnung in Suchsdorf
Objekt-Nr.: 268

Titelbild vermietet

Wohnzimmer

Kind 1

Kind 2

Schlafen

Küche

Bad

Gäste-WC

Flur

Essen










mtl. Kaltmiete:
1.100 €
Wohnfläche ca.:
93 m²
Zimmeranzahl:
4,5
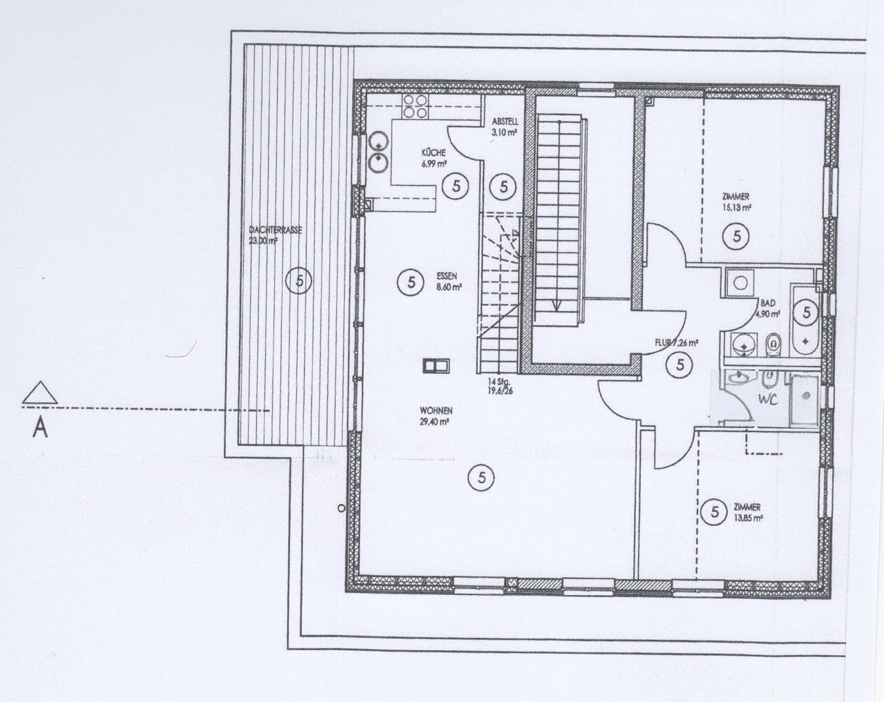
Diese frisch renovierte 4,5-Zimmerwohnung befindet sich im Hochparterre eines Mehrfamilienhauses mit sechs Wohnungen.
Sie liegt in einem ruhigen Wohngebiet von Kiel-Suchsdorf. Das Haus gehört zu einer kleinen, sehr gepflegten Wohnanlage.
Vom Flur der Wohnung gehen sämtliche Räume ab. Das große und helle Wohnzimmer und die Kinderzimmer sind in süd-westlicher Lage. Von diesen Zimmern haben Sie einen Ausblick in die Grünanlage und auf den durch Pflanzen abgeschirmten Parkplatz.
Die Loggia der Wohnung betreten Sie über das Wohnzimmer.
Die Küche mit der neuen Einbauküche erreichen Sie über das offene Esszimmer. Hier kann die Familie zusammen sitzen und gemeinsam kochen.
Vom Flur abgehend befindet sich im Eingangsbereich das Gäste-WC.
Das Schlafzimmer liegt ruhig in nord- östlicher Lage.
Ein Abstellraum gibt Ihnen die Möglichkeit Staubsauger, Besen und Vorräte gut zu lagern.
Im Badezimmer ist die Badewanne mit einer Duschabtrennung ausgestattet. Ebenfalls vorhanden ist hier auch ein Waschmaschinenanschluss.
Wohnungstyp: Hochparterre
Etage: 1
Etagenanzahl: 3
Nebenkosten: 105 €
Kaution / Genossenschaftsanteile: 3300
Heizkosten: 140 €, sind nicht in den Nebenkosten enthalten
Provisionspflichtig: nein
Küche: Einbauküche
Bad: Wanne
Anzahl Schlafzimmer: 3
Anzahl Badezimmer: 1
Loggia: 1
Gäste-WC: ja
Keller: Abstellraum
Umgebung: Bahnhof, Bus, Einkaufsmöglichkeit, Grundschule, Kindergarten, ruhige Gegend, weiterführende Schule, Wohngegend
Anzahl der Parkflächen: 1 x Außenstellplatz
Möbliert: nein
Haustiere: nach Vereinbarung
Letzte Modernisierung/ Sanierung: 2022
Qualität der Ausstattung: normal
Baujahr: 1983
Bezugsfrei ab: 01.12.2022
Bodenbelag: Fliesen, Laminat, Parkett
Zustand: vollständig renoviert
Energieverb. Warmwasser enthalten: ja
Heizung: Zentralheizung
Befeuerungsart: Gas
Energieausweistyp: Verbrauchsausweis - gültig vom 03.04.2014 bis 02.04.2024
Baujahr laut Energieausweis: 1983
Die von uns gemachten Informationen beruhen auf Angaben des Verkäufers bzw. der Verkäuferin. Für die Richtigkeit und Vollständigkeit der Angaben kann keine Gewähr bzw. Haftung übernommen werden. Ein Zwischenverkauf und Irrtümer sind vorbehalten.
Wir weisen auf unsere Allgemeinen Geschäftsbedingungen hin. Durch weitere Inanspruchnahme unserer Leistungen erklären Sie die Kenntnis und Ihr Einverständnis.
Das könnte Ihnen auch gefallen
Schleswig-Holstein Immobilien Jan Gehrmann e.K.
Herr Jan Gehrmann
Faulstraße18
24103 Kiel
Büro: +49 431 5809121-2
Mobil: +49 151 46542987







































